Maison Y-B

Construction neuve - Cléder (29)

Maître d'ouvrage : Privé
Maîtrise d'œuvre : Studio In Situ : Mélanie Le Gall - architecte
Surface : 117 m2
Matériaux : Béton préfabriqué – Toiture terrasse – Menuiseries alu
Coût : 170 000 euros TTC

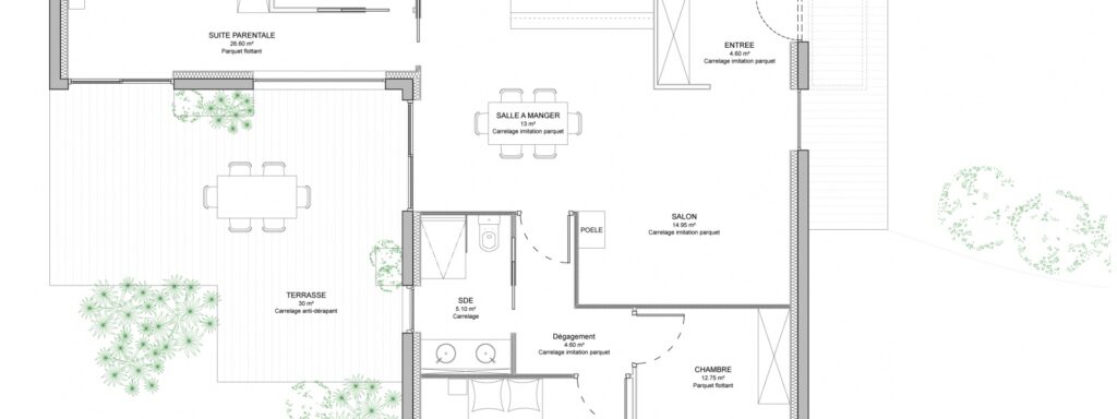
Cette maison neuve, accessible PMR, se développe sur un plain-pied selon un plan en "L". Cette disposition permet de profiter au maximum des apports solaires en façade Sud-Ouest. De fait, la terrasse vient se loger au creux du "L" à l’abri des vents dominants pour profiter pleinement de l’exposition. Un jeu de teintes d’enduit blanc et gris permet de souligner les deux volumes créés. A l’intérieur, la suite parentale a son indépendance dans une aile de la maison et jouit d’un accès direct à la terrasse. La pièce de vie est au cœur du logement et profite d’une triple exposition afin de capter toutes les lumières. Enfin, les deux autres chambres sont installées dans l’autre aile avec une autonomie grâce à la salle de bain partagée.

Autres projets réalisés en Bretagne par le cabinet d’architecture Studio In Situ

Maison J2

Maison J2

Construction neuve

Plouvorn (29)

Maison et bureau L-LG

Maison et bureau L-LG

Construction neuve

Roscoff (29)

Rénovation O

Rénovation O

Rénovation & extension d’une maison

Plouescat (29)